Home
Contact
More
Home
Contact
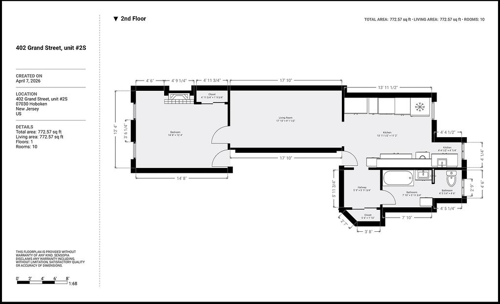
402 Grand Street, Unit #2S