Home
Contact
More
Home
Contact
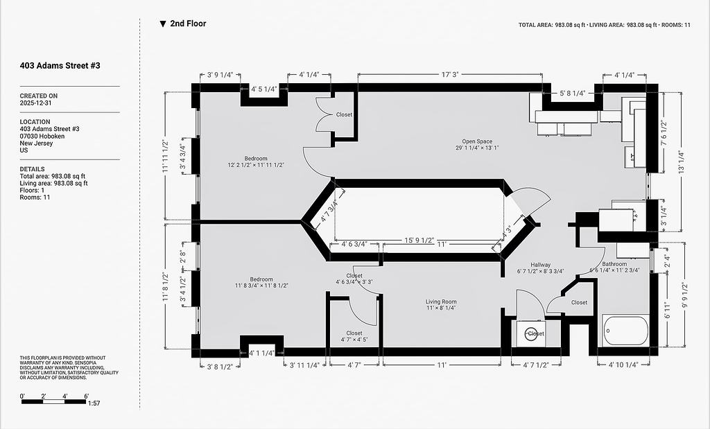
403 Adams, Unit #3