Home
Contact
More
Home
Contact
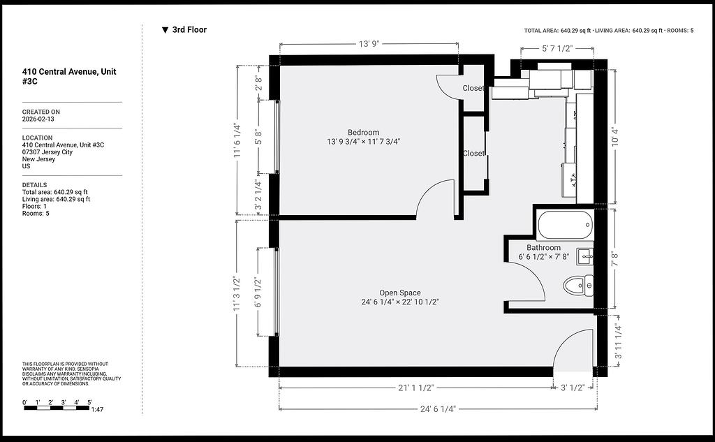
410 Central Ave, JC Unit #3C