Home
Contact
More
Home
Contact
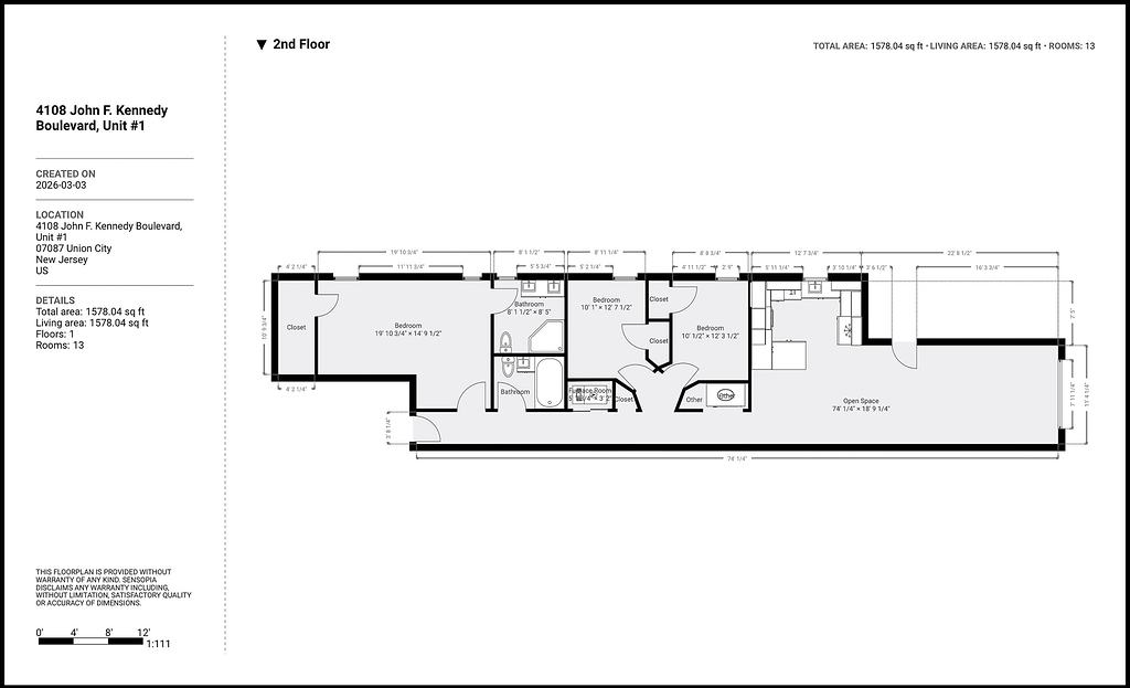
4108 JFK Blvd Unit #1