Home
Contact
More
Home
Contact
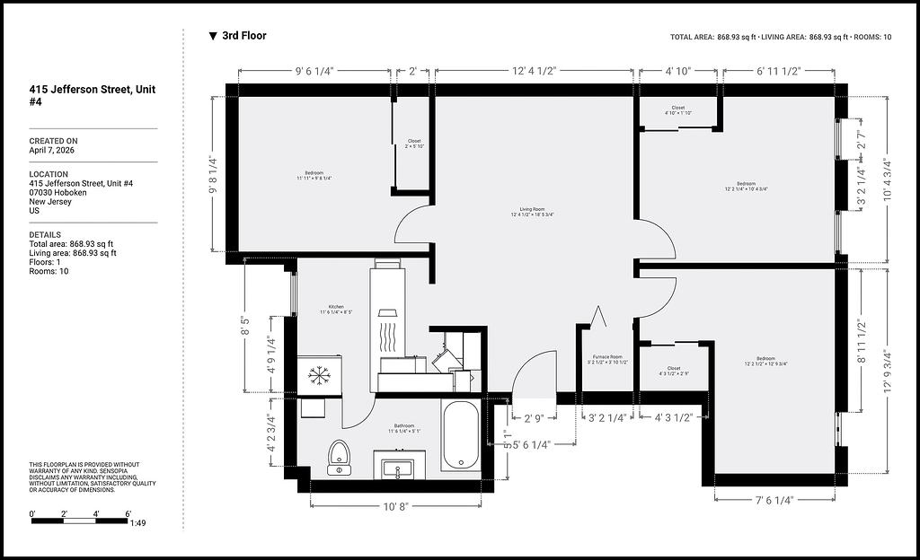
415 Jefferson, #4