Home
Contact
More
Home
Contact
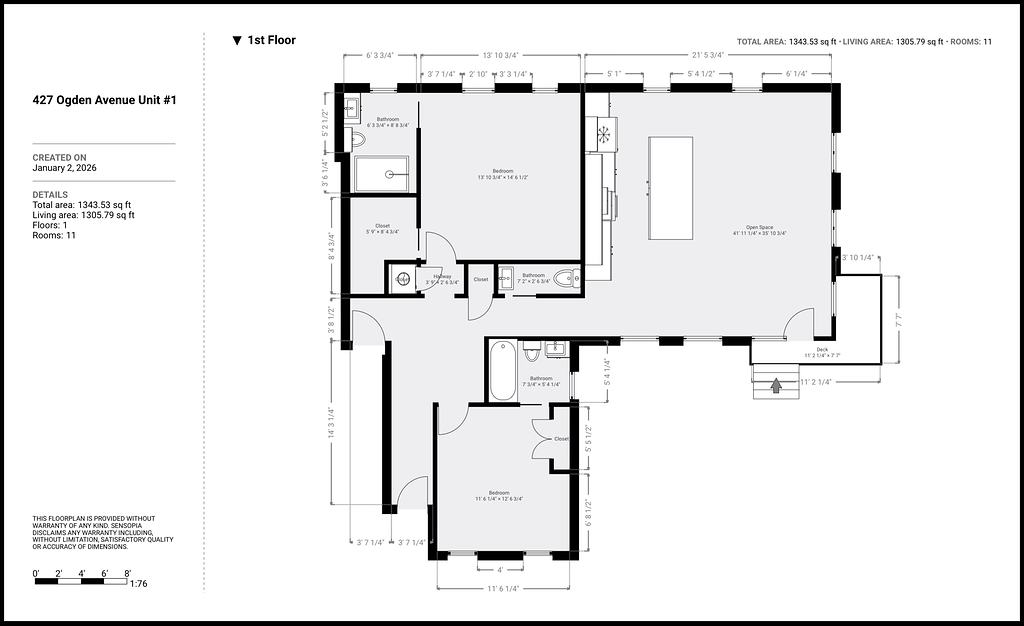
427 Ogden - Floor Plan 3/15 Update