Home
Contact
More
Home
Contact
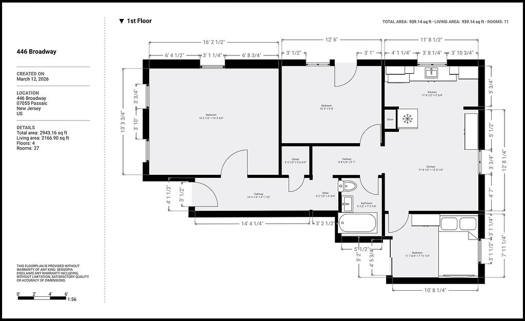
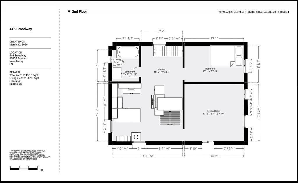
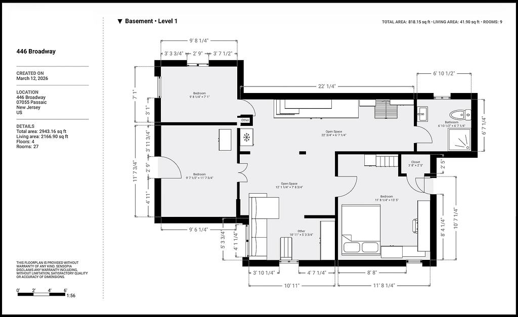
446 Broadway, Passaic, Unit #2