Home
Contact
More
Home
Contact
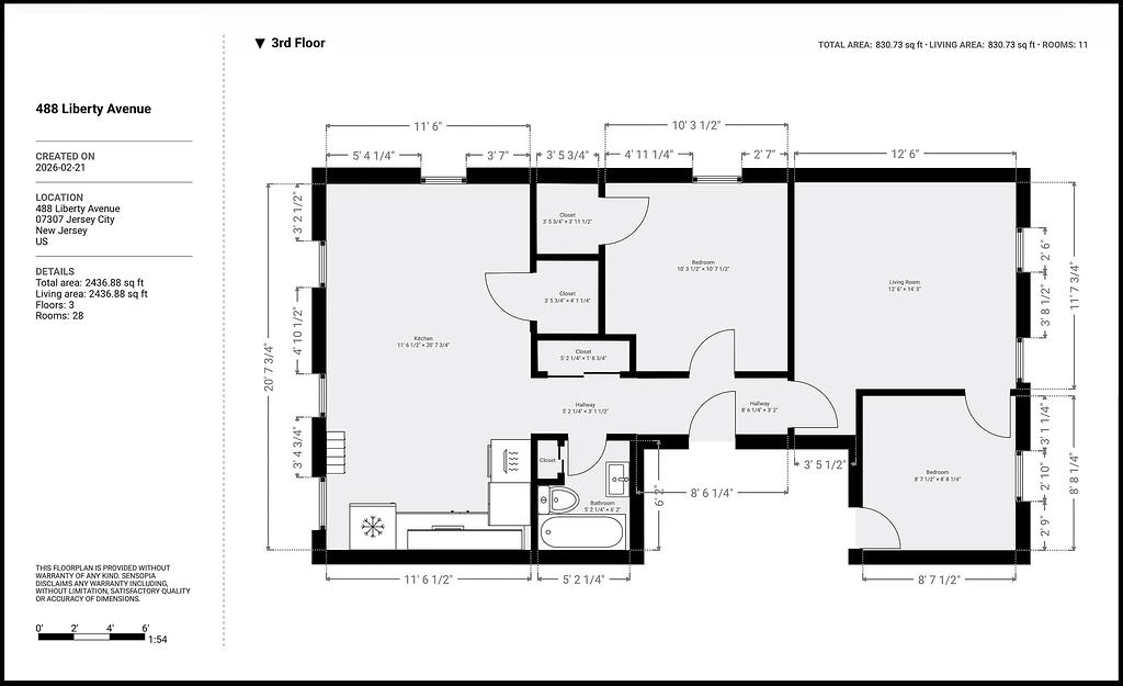
488 Liberty Ave, JC Unit #3