Home
Contact
More
Home
Contact
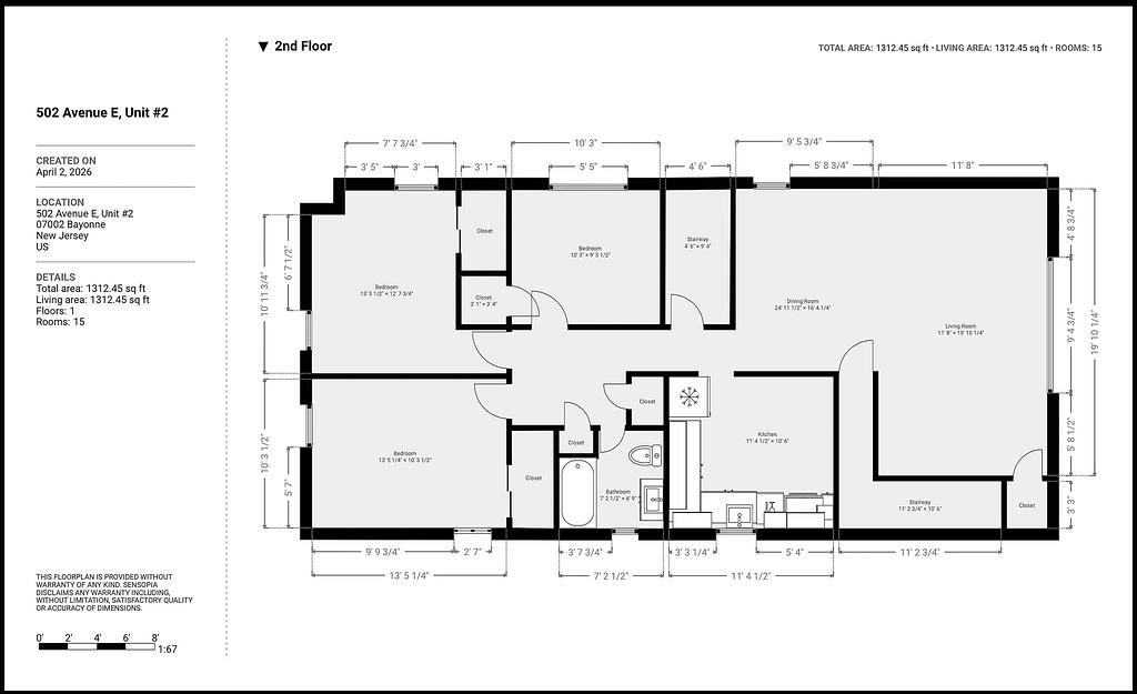
502 Ave E, Bayonne Unit #2