Home
Contact
More
Home
Contact
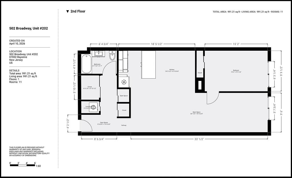
502 Broadway, Bayonne - Unit #202