Home
Contact
More
Home
Contact
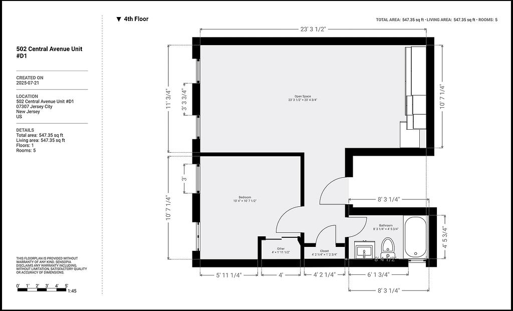
502 Central Ave, JC Unit #1D (Renovated)