Home
Contact
More
Home
Contact
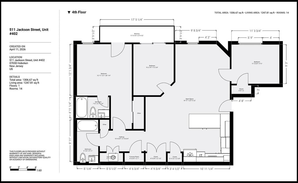
511 Jackson, Unit #402