Home
Contact
More
Home
Contact
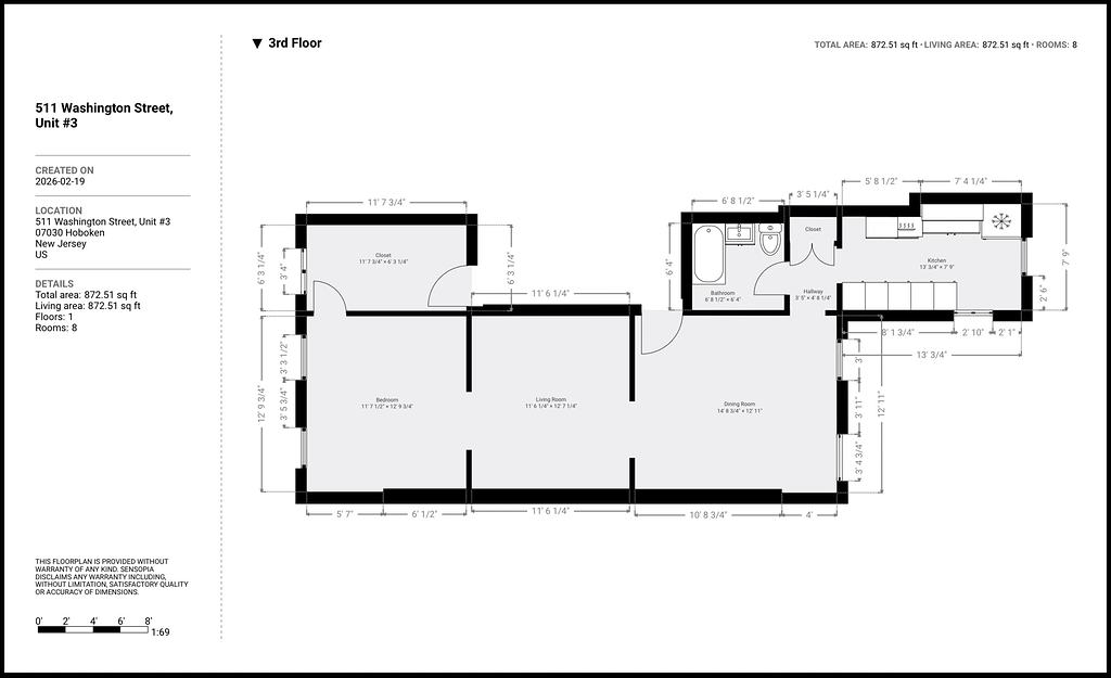
511 Washington St, Unit #3