Home
Contact
More
Home
Contact
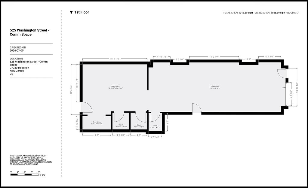
525 Wash - Comm Space Floor Plan Draft