Home
Contact
More
Home
Contact
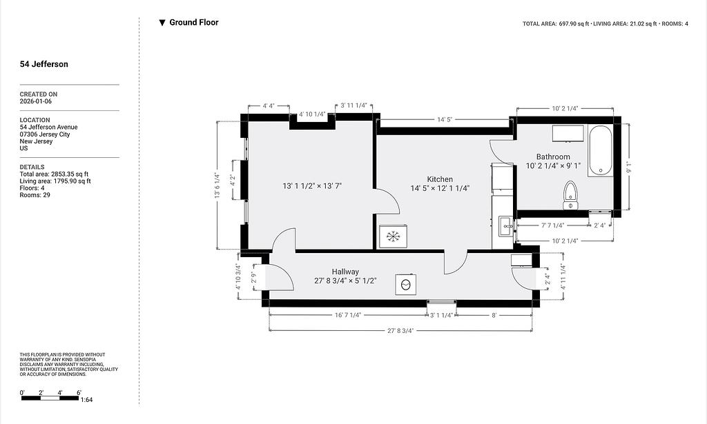
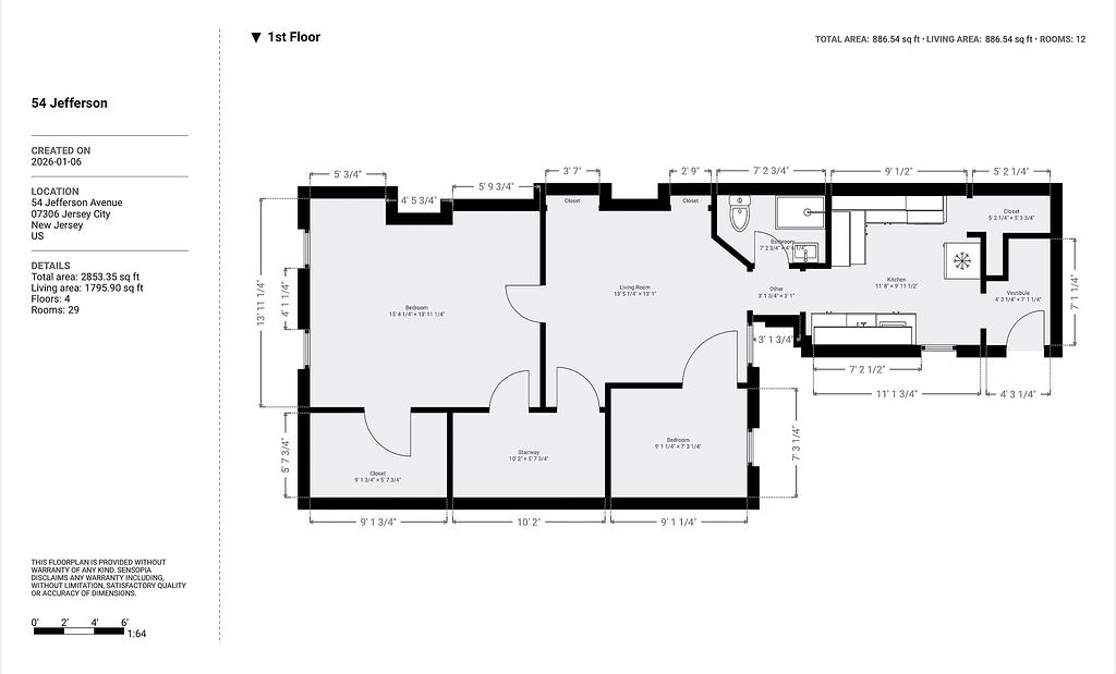
54 Jefferson Units #1 & #2