Home
Contact
More
Home
Contact
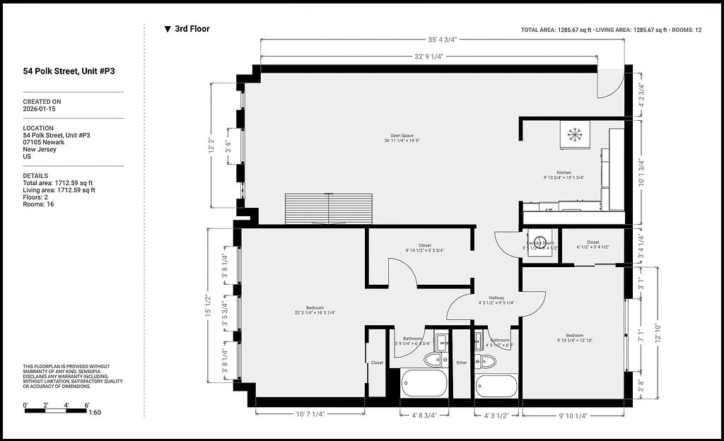
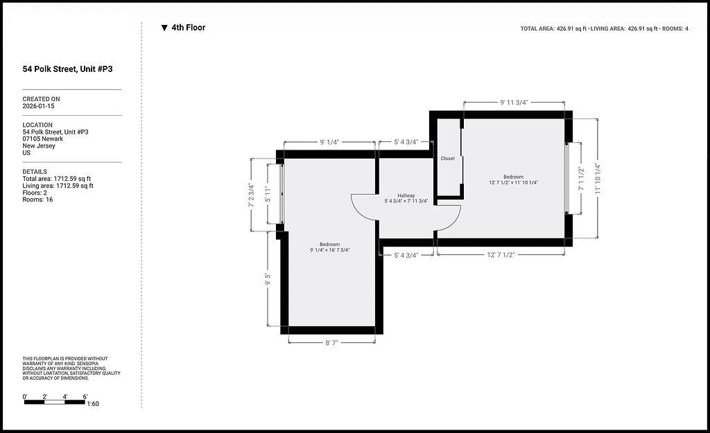
54 Polk, Unit #P3
Load More