Home
Contact
More
Home
Contact
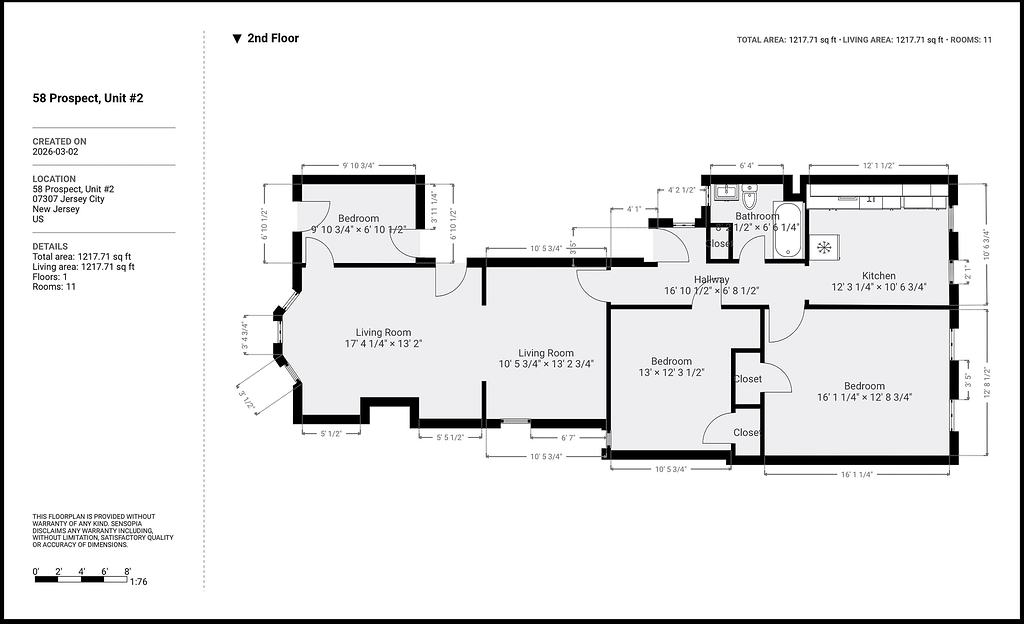
58 Prospect Ave, JC Unit #2