Home
Contact
More
Home
Contact
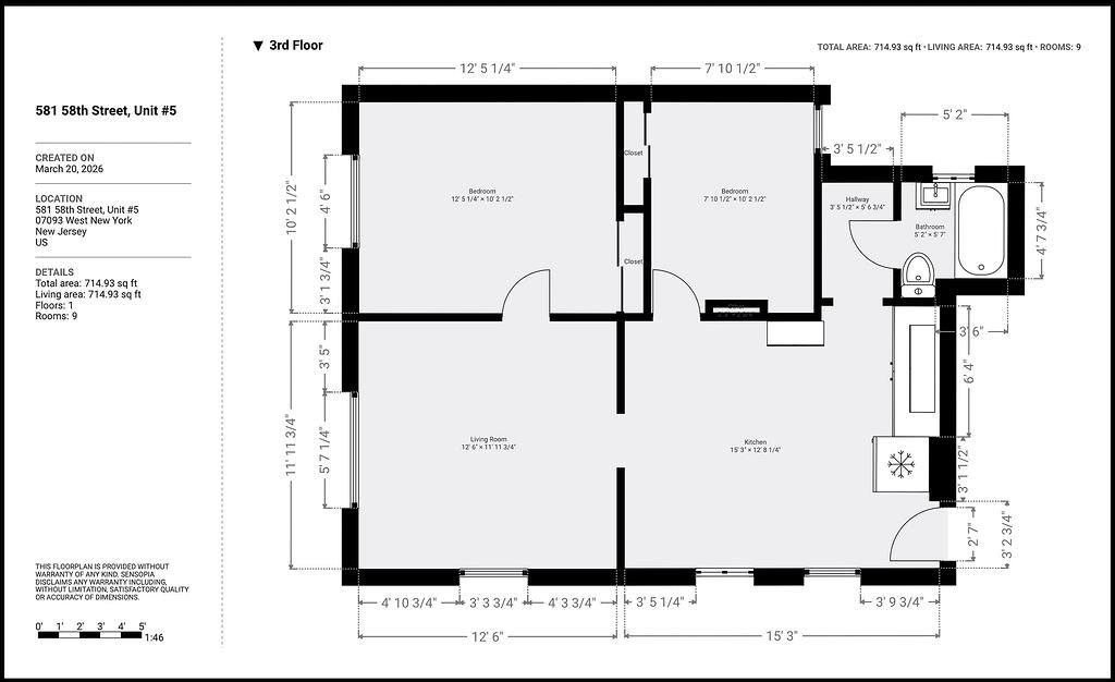
581 58th Street, Unit #5