Home
Contact
More
Home
Contact
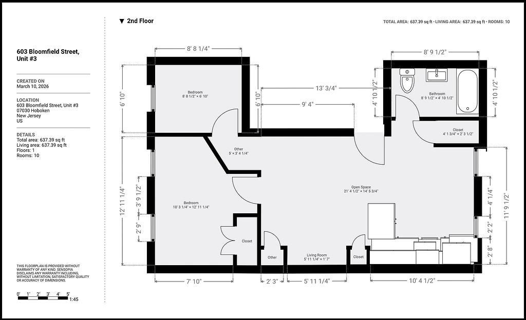
603 Bloomfield, Unit #3