Home
Contact
More
Home
Contact
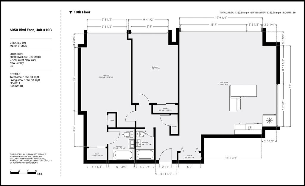
6050 Blvd East, Unit #10C