Home
Contact
More
Home
Contact
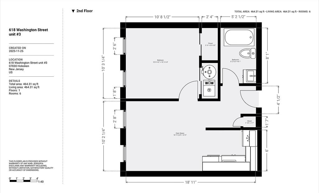
618 Washington St, Unit #3