Home
Contact
More
Home
Contact
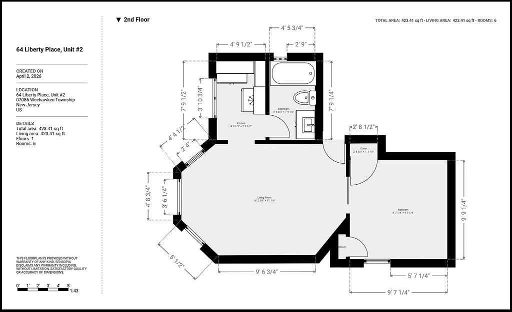
64 Liberty Place, Unit #2