Home
Contact
More
Home
Contact
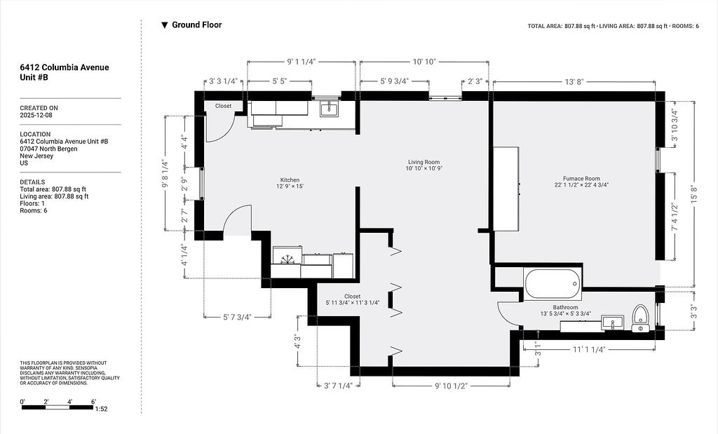
6412 Columbia Ave, NB Unit #B