Home
Contact
More
Home
Contact
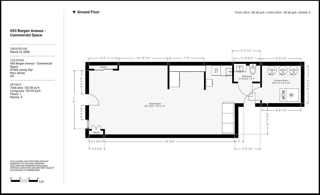
693 Bergen Ave - Comm Space