Home
Contact
More
Home
Contact
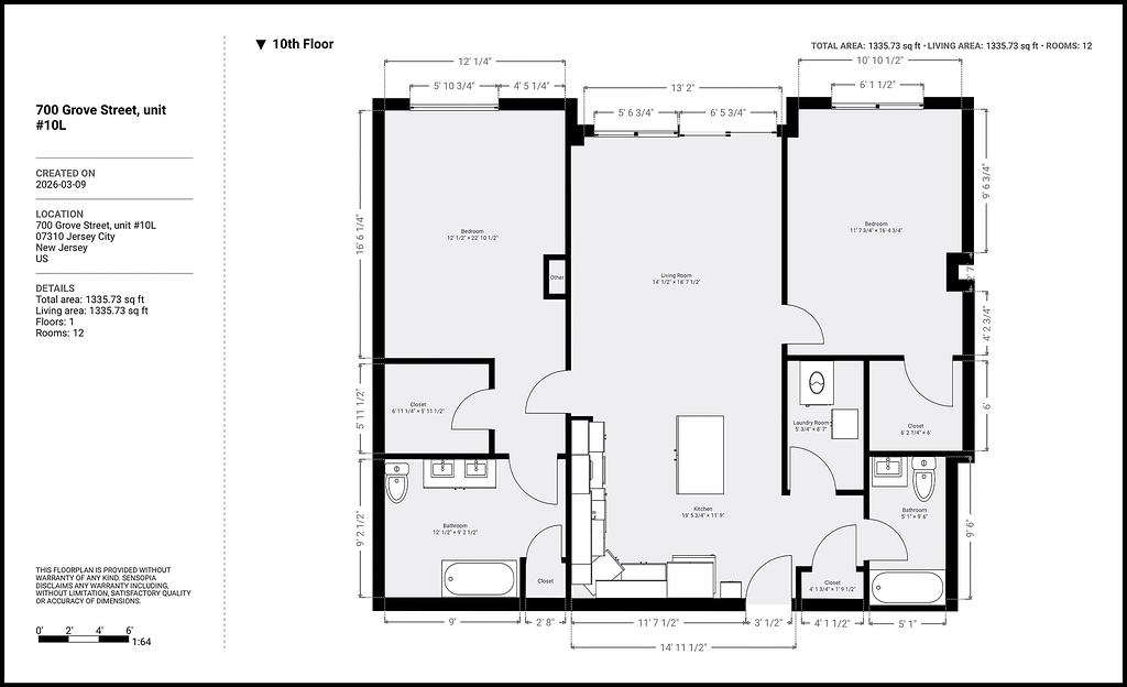
700 Grove Street, Unit #10L
Load More