Home
Contact
More
Home
Contact
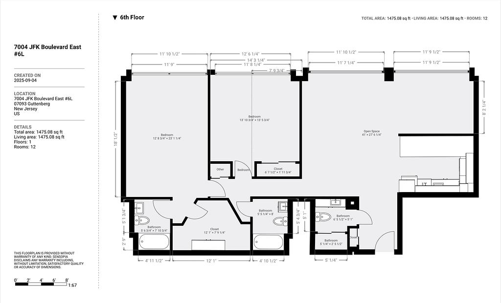
7004 JFK Blvd East, Unit #6L