Home
Contact
More
Home
Contact
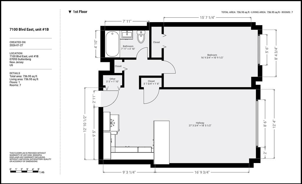
7100 Blvd East, Unit #1B