Home
Contact
More
Home
Contact
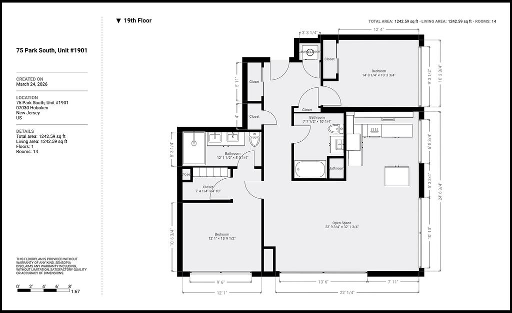
75 Park South, Unit #1901