Home
Contact
More
Home
Contact
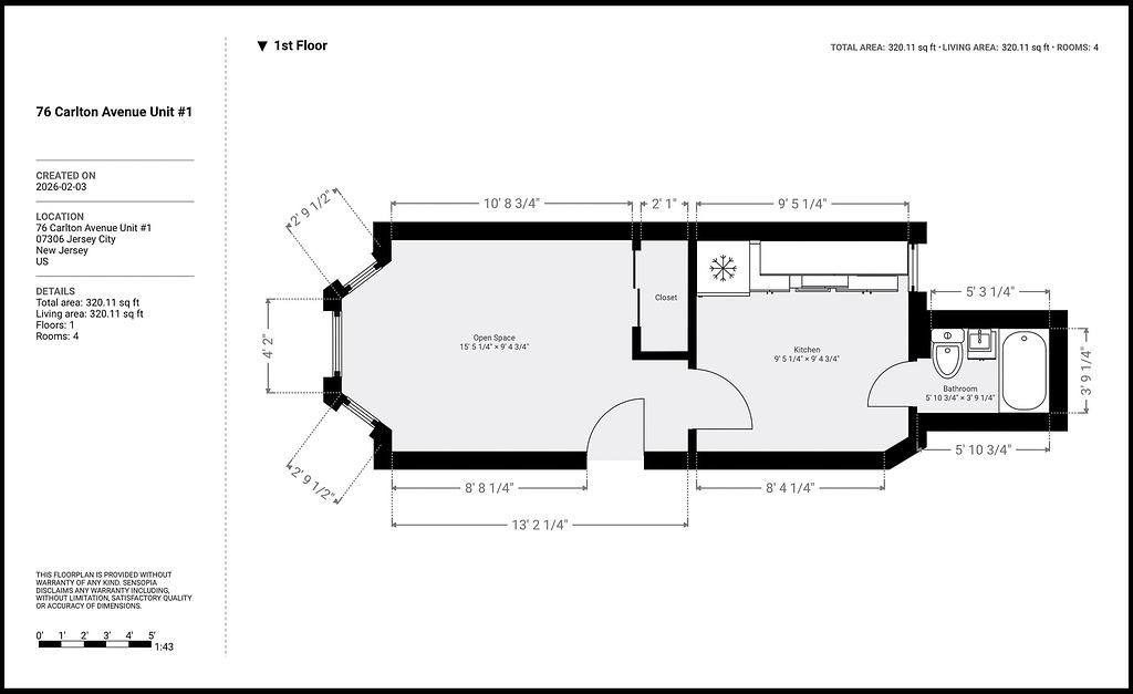
76 Carlton, JC Unit #1