Home
Contact
More
Home
Contact
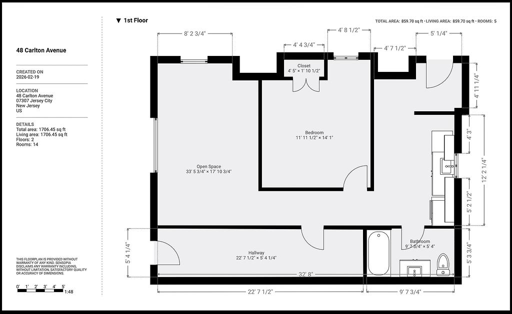
78 Carlton Ave, JC Unit #1