Home
Contact
More
Home
Contact
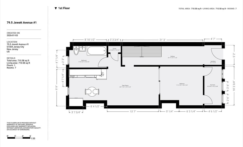
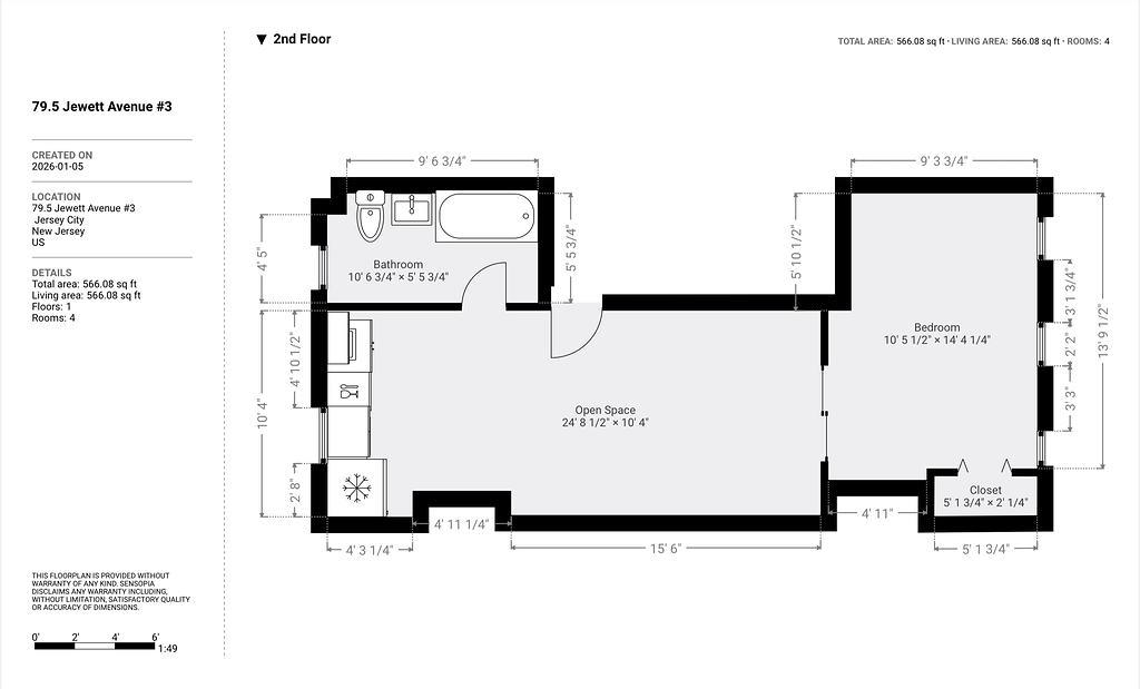
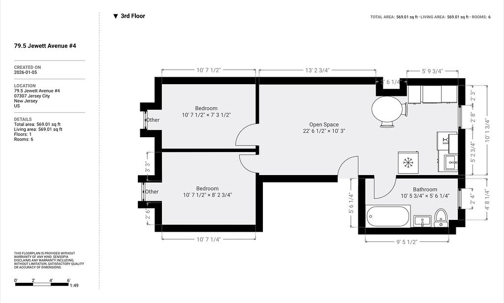
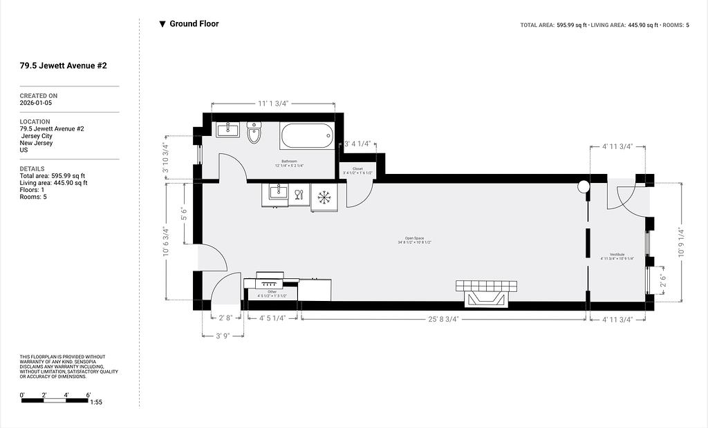
79.5 Jewett Ave - Floor Plan Design