Home
Contact
More
Home
Contact
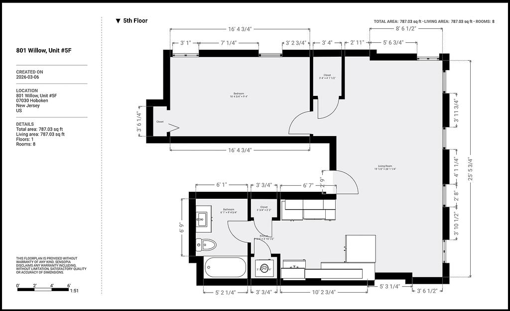
801 Willow, Unit #5F
Load More