Home
Contact
More
Home
Contact
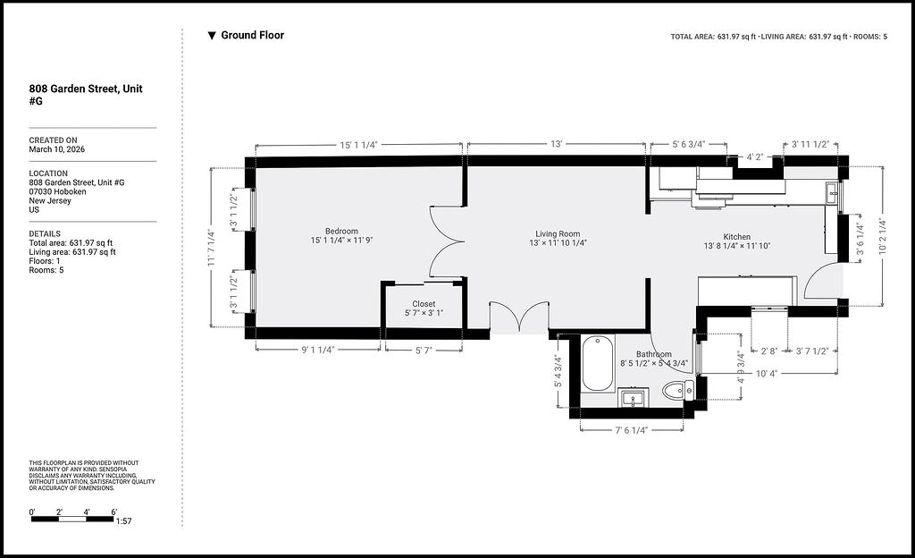
808 Garden St, Unit #G