Home
Contact
More
Home
Contact
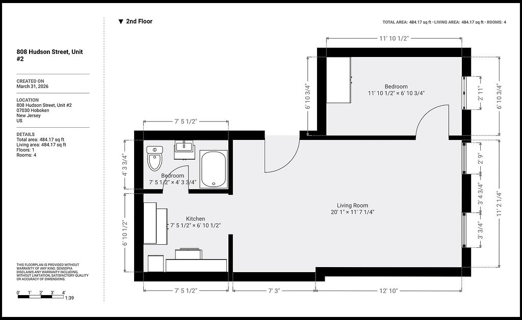
808 Hudson, Unit #2