Home
Contact
More
Home
Contact
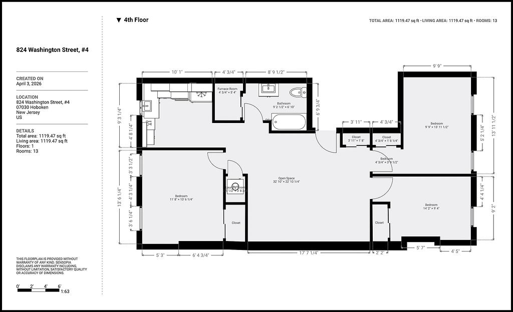
824 Washington Street, Hoboken Unit #4