Home
Contact
More
Home
Contact
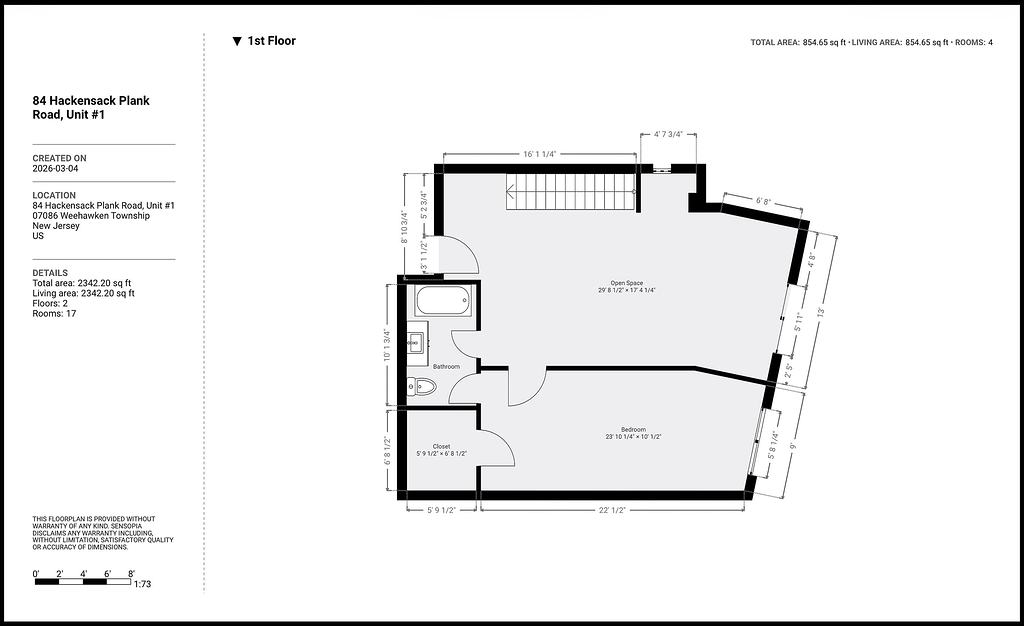
84 Hackensack Plank Rd #1
Load More