Home
Contact
More
Home
Contact
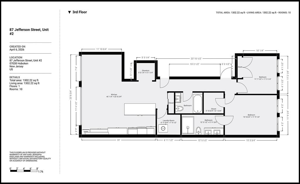
87 Jefferson Street, Unit #2