Home
Contact
More
Home
Contact
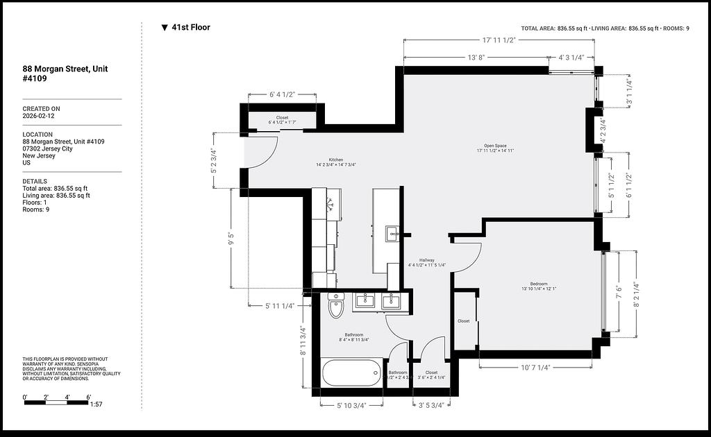
88 Morgan, JC Unit #4109