Home
Contact
More
Home
Contact
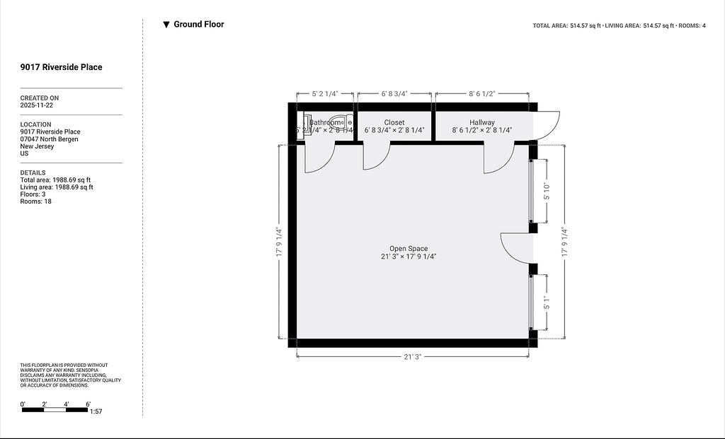
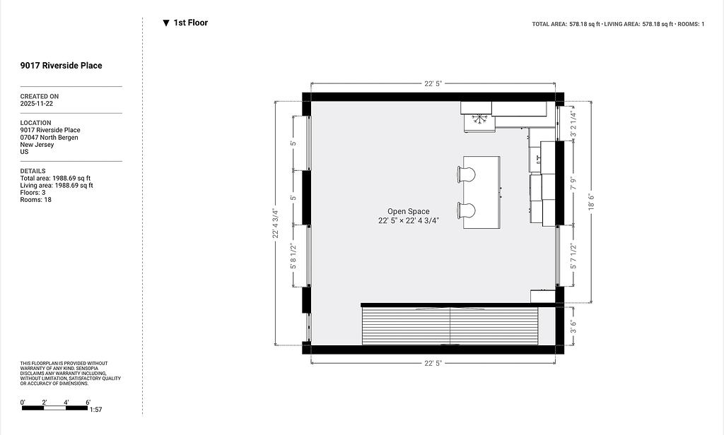
9017 Riverside Place, NB
Load More