Home
Contact
More
Home
Contact
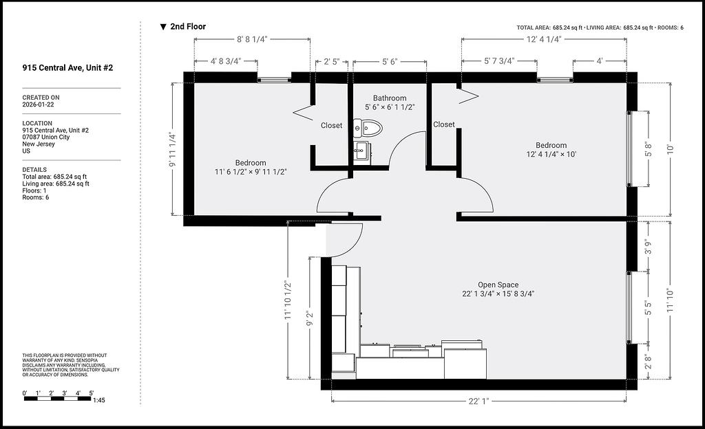
915 Central Ave, UC Unit #2