Home
Contact
More
Home
Contact
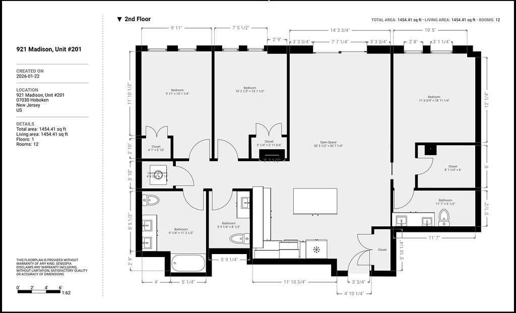
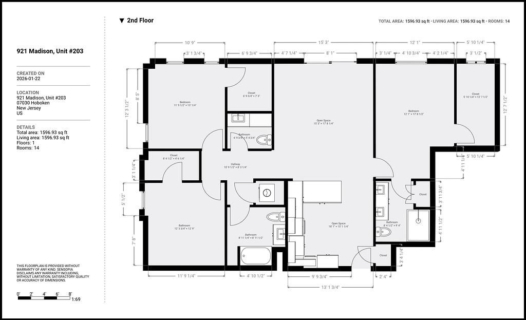
921 Floor Plans #201 & #203