Home
Contact
More
Home
Contact
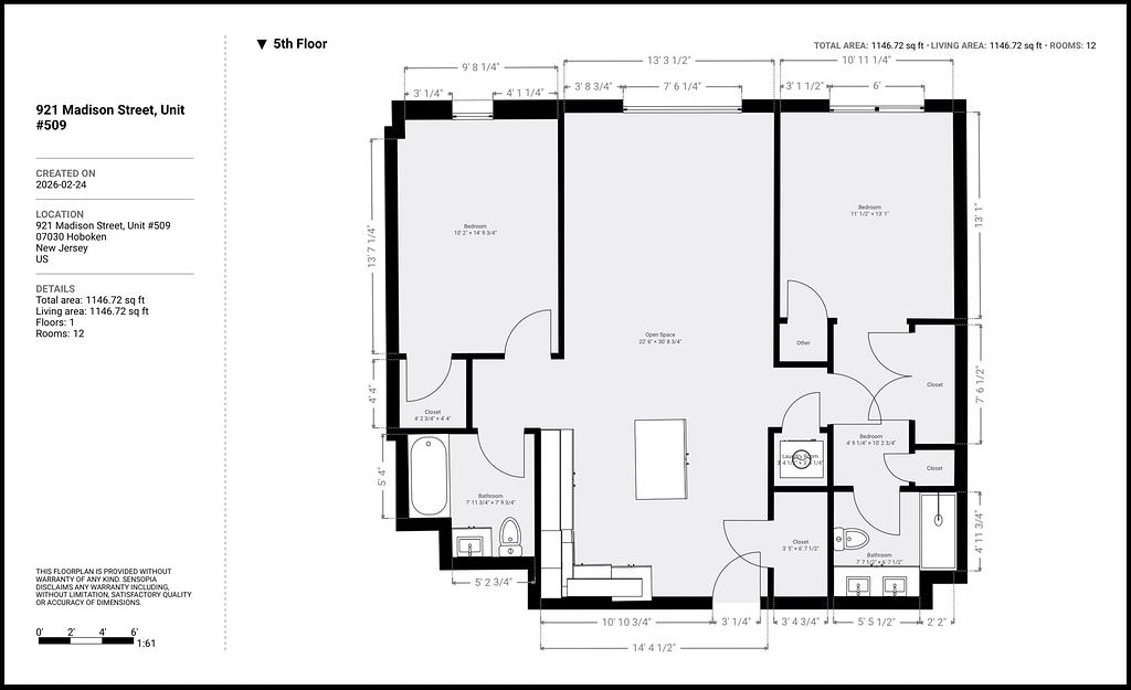
921 Madison, Unit #509 - Floor Plan Design