Home
Contact
More
Home
Contact
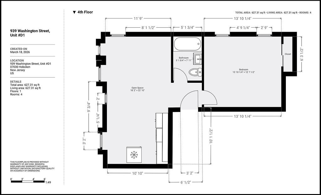
939 Washington Street, Unit #D1