Home
Contact
More
Home
Contact
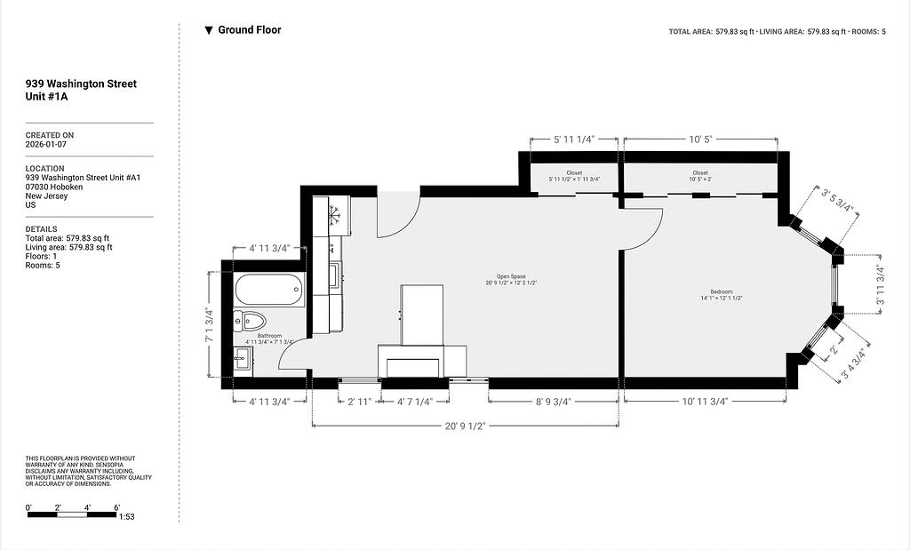
939 Washington Unit #A1