Home
Contact
More
Home
Contact
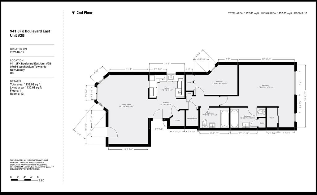
941 Blvd East, Unit #2B