Home
Contact
More
Home
Contact
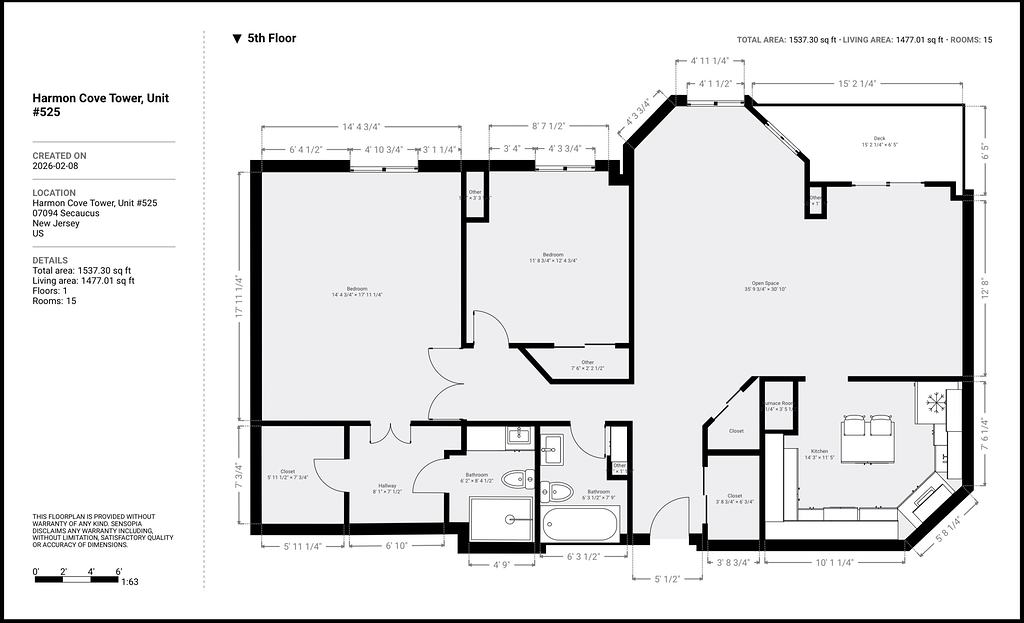
Harmon Cove Towers - Unit #525
Load More