Home
Contact
More
Home
Contact
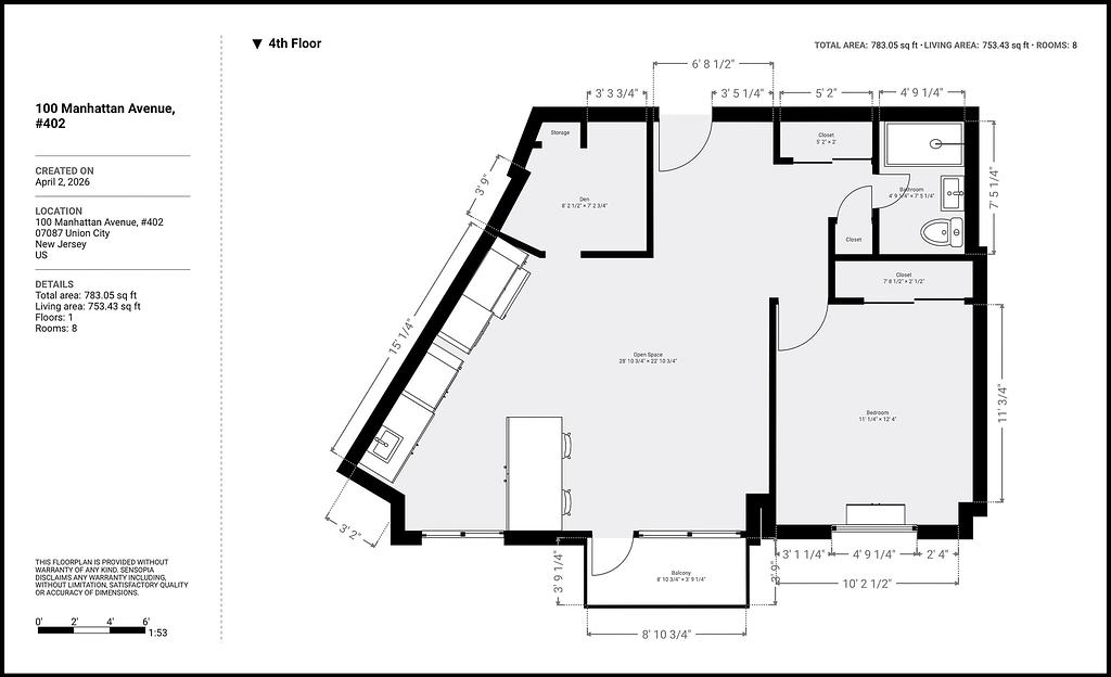
The Doric - Unit #402