Home
Contact
More
Home
Contact
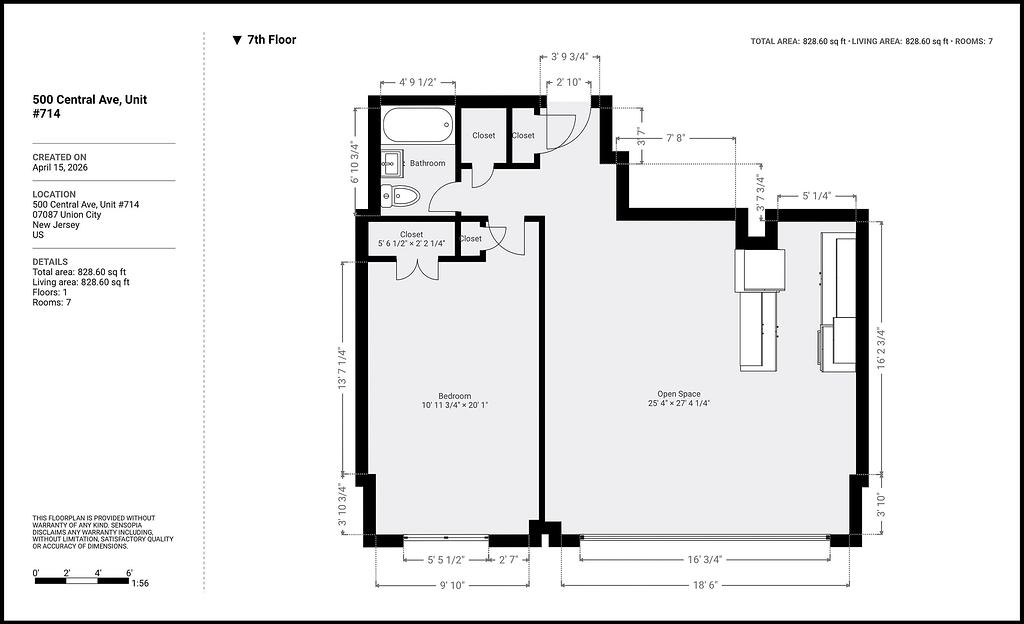
The Lenox, Unit #714